SIXPLEX ST-MICHEL
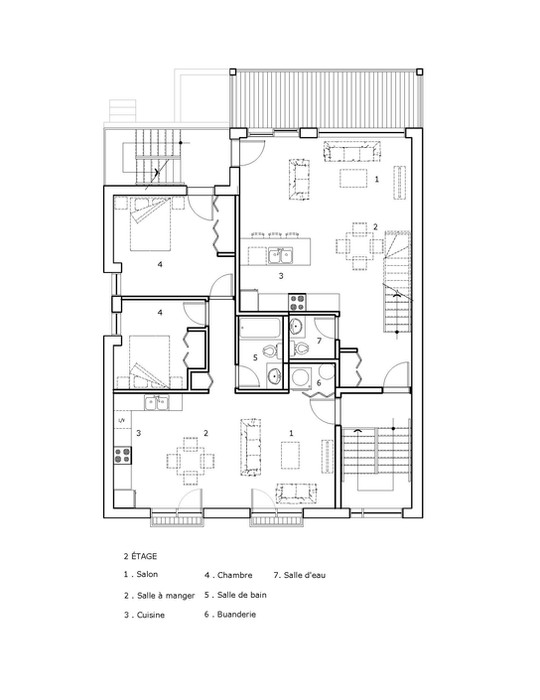
Le projet consiste en une nouvelle construction de six unités d'habitation sur trois étages, ainsi qu'un sous-sol et une mezzanine, dans le quartier St-Michel. Les logements proposent une mixité de configurations, comprenant des appartements d'une et de deux chambres à coucher, pour répondre à la demande croissante de densification dans le secteur. Le bâtiment arbore un design contemporain aux lignes épurées, avec une façade principale alternant brique rouge et fibrociment, agrémentée d'ouvertures régulières. Les balcons sont prévus à chaque étage, offrant une vue sur l'environnement urbain. Une attention particulière a été accordée à l'aménagement intérieur pour optimiser l'espace et la fonctionnalité de chaque unité. Le bâtiment est doté d'un toit vert qui contribue à la réduction de son empreinte écologique et à combattre les îlots de chaleur. De plus, une terrasse sur le toit sera aménagée pour offrir aux occupants de la mezzanine un espace extérieur supplémentaire agrémenté avec des bacs à fleurs et offrant une vue panoramique sur les environs.
PROJET
Nouvelle construction d'un sixplex sur trois étages, un sous-sol et une mezzanine
LIEU
St-Michel – Montréal
ANNÉE
2022














